Click vào để biết vị trí, tiện ích, quy hoạch... của dự án
Chọn bán kính
200 m
500 m
1 km
2 km
5 km
Chọn loại tiện ích
Trường học
Cơ sở y tế
ATM & ngân hàng
Cơ quan hành chính
Café & nhà hàng
Cửa hàng & Siêu thị
Trung tâm thể thao giải trí
Làm đẹp - spa
Bến xe, trạm xe
Bạn muốn đặt Hotline ở đây
Quy mô dự án Grand Oceania - Sonasea Vân Đồn Harbor City Quảng Ninh

Phối cảnh phân khu Grand Oceania
Tổng diện tích | 7,5ha |
Số lượng sản phẩm | 225 nhà phố, biệt thự |
Quy mô phân khu Grand Oceania

Vị trí phân khu Grand Oceania trong dự án Sonasea Vân Đồn Harbor City

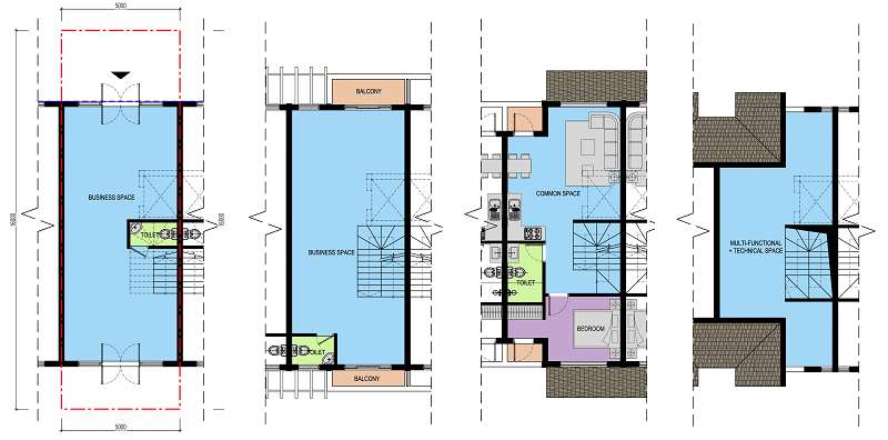
Mặt bằng phân khu Grand Oceania
Sản phẩm dự án Grand Oceania - Sonasea Vân Đồn Harbor City Quảng Ninh
Ocean Villa đơn lập
Diện tích: 144-240m2


Thiết kế Ocean Villa đơn lập
Ocean Villa đơn lập góc


Thiết kế Ocean Villa đơn lập góc
Ocean Villa song lập


Thiết kế Ocean Villa song lập
Grand Ocean Villa
Diện tích: 240-404,2m2

Thiết kế Grand Ocean Villa
Boutique shop
Diện tích: 80-105m2


Thiết kế boutique shop
Tiện ích dự án Grand Oceania - Sonasea Vân Đồn Harbor City Quảng Ninh
- Hẻm giải trí Tiki Taka Alley
- Đại lộ Grand Ocean
- Bãi đỗ xe
- Vườn cây Pua Kai Garden
- Sảnh chờ Welcome Center
- Nhà tiện ích Ocean Station
- Câu lạc bộ poker
- Lounge & bar đa phong cách
- Tháp Sonasea Lighthouse
- Khu sự kiện Grand Yard
- Poor bar
- Bể bơi trẻ em, bể bơi người lớn…


Phối cảnh tiện ích tại dự án
Pháp lý dự án Grand Oceania - Sonasea Vân Đồn Harbor City Quảng Ninh
Grand Oceania là phân khu thuộc dự án Sonasea Vân Đồn Harbor City, có tên pháp lý là dự án khu tổ hợp du lịch nghỉ dưỡng Sonasea Vân Đồn Harbor City – Phân khu 1 tại xã Hạ Long, huyện Vân Đồn.
Ngày 20/9/2019, UBND tỉnh Quảng Ninh ban hành Quyết định số 3939/QĐ-UBND về việc quyết định điều chỉnh chủ trương đầu tư dự án.
Ngày 30/6/2021, UBND tỉnh Quảng Ninh ban hành Quyết định số 171/QĐ-BQLKKTVĐ về việc phê duyệt điều chỉnh quy hoạch chi tiết xây dựng tỷ lệ 1/500.
Ngày 28/10/2022, UBND tỉnh Quảng Ninh cấp giấy phép xây dựng số 06/GPXD cho chủ đầu tư được phép xây dựng dự án.
Tiến độ dự án Grand Oceania - Sonasea Vân Đồn Harbor City Quảng Ninh
Ngày 5/2/2025, phân khu Grand Oceania chính thức được khởi công.
Cập nhật tháng 7/2025, các tuyến đường nội khu đã hình thành, tiến hành xây dựng dãy biệt thự Ocean Villa và Clubhouse.
Giá bán tham khảo:
- Boutique Shop: 6,6-9,5 tỷ đồng/căn
- Ocean Villa: 9,6-15 tỷ đồng/căn
- Grand Ocean Villa: 24-45 tỷ đồng/căn


Tiến độ dự án cập nhật tháng 7/2025
Thông tin chủ đầu tư dự án Grand Oceania - Sonasea Vân Đồn Harbor City Quảng Ninh
Chủ đầu tư dự án Grand Oceania là Công ty Cổ phần Đầu tư và Phát triển Du lịch Vân Đồn (thuộc tập đoàn CEO) hoạt động từ năm 2017, địa chỉ trụ sở là đặc khu Vân Đồn, tỉnh Quảng Ninh. Người đại diện pháp luật là ông Trần Hoàng Vũ. Doanh nghiệp hoạt động chính trong lĩnh vực kinh doanh bất động sản.
Thông tin nhanh dự án Grand Oceania - Sonasea Vân Đồn Harbor City Quảng Ninh
Dự án: Grand Oceania | Tổng diện tích: 7,5ha |
Vị trí: Sonasea Vân Đồn Harbor City, đường DT334, đặc khu Vân Đồn, tỉnh Quảng Ninh | Tổng vốn đầu tư: |
Loại hình: Biệt thự, shophouse | Năm khởi công: 5/2/2025 |
Chủ đầu tư: Công ty Cổ phần Đầu tư và Phát triển Du lịch Vân Đồn (thuộc tập đoàn CEO) | Năm hoàn thành: |
Cẩm Tú

Đăng ký kênh Youtube CafeLand để theo dõi các video bất động sản mới nhất!
.link-source-wrapper.noactive .link-source-detail{
display: none;
}
.link-source-wrapper.active .link-source-detail{
display: block;
}
.link-source-detail {
background: #838383;
border-radius: 6px;
width: 300px;
position: absolute;
right: 0;
bottom: 30px;
padding: 10px 12px;
z-index: 99;
}
.link-source-detail span.link-source-detail-title {
color: rgba(255,255,255,0.8);
float: left;
font-size: 13px;
}
.link-source-detail span.btn-copy-link-source.copy-source {
padding: 3px;
border: 1px solid;
border-radius: 5px;
color: white;
opacity: 0.4;
cursor: pointer;
float: right;
font-size: 12px;
margin-bottom: 5px;
line-height: initial;
}
.link-source-detail .link-source-full {
color: #fff!important;
display: block;
word-break: break-all;
margin-top: 20px;
clear: both;
border: 1px solid;
padding: 0 10px;
border-radius: 5px;
font-size: 13px;
}
.link-source-detail .arrow-down {
width: 0;
height: 0;
border-left: 10px solid transparent;
border-right: 10px solid transparent;
border-top: 10px solid #838383;
position: absolute;
bottom: -10px;
right: 16px;
}
#clipboard-area{
width: 100%;
border: none;
color: #fff;
height: 35px;
}
.box-v-ndt{
padding: 2px 0px;
font-size: 12px;
line-height: 24px;
background: #f7f7f7;
box-sizing: border-box;
border-radius: 10px;
color: #8f8f8f;
font-weight: 100;
float: right;
margin-top: -2px;
}
Sản phẩm/ Dịch vụ
❮ ❯
Gói tài khoản VIP-01
Dịch vụ đăng tin
Gói tài khoản VIP-02
Dịch vụ đăng tin
Gói tài khoản VIP-03
Dịch vụ đăng tin
Gói tài khoản VIP ĐẶC BIỆT
Dịch vụ đăng tin
Gói đăng tin Super VIP
Dịch vụ đăng tin
.product-wrapper {
width: 100%;
max-width: 1000px;
background: #fff;
border: 2px solid #ddd;
border-radius: 12px;
padding: 16px 20px 0px 16px;
box-shadow: 0 6px 12px rgba(0,0,0,0.05);
display: flex;
flex-direction: column;
gap: 12px;
position: relative;
margin-bottom: 20px;
}
.product-wrapper .title {
font-size: 16px;
line-height: 30px;
font-weight: bold;
text-transform: uppercase;
color: #555;
text-align: left;
}
.product-wrapper .nav-btn {
position: absolute;
top: 50%;
transform: translateY(-50%);
width: 35px;
height: 35px;
background: #025098;
color: #fff;
border: none;
border-radius: 50%;
cursor: pointer;
font-size: 18px;
z-index: 10;
display: flex;
justify-content: center;
align-items: center;
opacity: 0.8;
transition: opacity 0.3s;
}
.product-wrapper .nav-btn:hover { opacity: 1; }
.product-wrapper .prev-btn { left: -18px; }
.product-wrapper .next-btn { right: -18px; }
.product-wrapper .product-list {
display: flex;
gap: 20px;
overflow-x: hidden;
scroll-behavior: smooth;
padding-bottom: 20px;
}
.product-wrapper .product-card a {
text-decoration: none;
}
.product-wrapper .product-card {
flex: 0 0 auto;
width: calc((100% / 3.5) - 15px);
background: #fff;
border-radius: 12px;
box-shadow: 0 6px 12px rgba(0,0,0,0.1);
overflow: hidden;
transition: transform 0.3s ease, box-shadow 0.3s ease, border 0.3s ease;
border: 2px solid transparent;
cursor: pointer;
}
.product-wrapper .product-card:hover {
box-shadow: 0 12px 24px rgba(0,0,0,0.2);
border: 2px solid #025098;
}
.product-wrapper .product-card.highlight { border: 2px solid #025098; }
.product-wrapper .product-card img { width: 100%; display: block; }
.product-wrapper .product-card .content { padding: 12px; }
.product-wrapper .product-card h4 {
margin: 0 0 8px; font-size: 15px; color: #333;
display: -webkit-box;
-webkit-line-clamp: 1;
-webkit-box-orient: vertical;
overflow: hidden;
}
.product-wrapper .product-card p { font-size: 13px; color: #666; line-height: 1.3; margin: 0; }
@media (max-width: 768px) {
.product-wrapper .product-card { width: calc((100% / 1.5) - 10px); }
.product-wrapper .nav-btn {
width: 28px;
height: 28px;
font-size: 15px;
}
.product-wrapper .prev-btn {
left: -10px;
}
.product-wrapper .next-btn {
right: -10px;
}
}
Mua bán cho thuê dự án Tin rao Giá dự án cùng khu vực

Dự án xung quanh
Facebook Chia sẻ Lưu tin Báo cáo #sendReport{color: #fff; background-color: #e72a1a; border-color: #e72a1a;}
.btnBCVP{padding: 2px 10px; font-size: 14px;}
#popUpFormReportViolResult .popRating-title{margin-top:0px;}
#popUpFormReportViolResult .msg_report{font-size: 14x; color: red;}
.popupReportCtn .itemRows, .popupReportCtn .itemRows label{width:100%; display: block; font-size: 14px;}
.popupReportCtn .itemRows label{text-align: left;}
.popupReportCtn .itemRows input,.popupReportCtn .itemRows textarea{font-size: 14px; width:100%; border: 1px solid #ced4da; border-radius: 0.25rem; padding:5px; box-sizing: border-box;}
.popupReportCtn .itemRows input.w100{width:48%;}
@media (max-width:500px){
.popUpFormBinhLuan > div.wrapper{width:80%;}
}
.btnOA {
padding: 2px 10px;
font-size: 14px;
float: right !important;
margin-right: 0px !important;
}
.btnOA .box-contact-oa img{padding-top: 4px;}
@media (max-width:768px){
.btnOA {
float: left !important;
margin-right: 5px !important;
}
}
Cảm ơn bạn đã đăng ký "Chương trình hỗ trợ tư vấn mua nhà miễn phí" CafeLand sẽ phản hồi bạn trong thời gian sớm nhất.
Nếu có bất kỳ khó khăn gì trong việc sử dụng website, liên hệ với CafeLand.vn qua hotline: 0942.825.711 hoặc email [email protected] để được trợ giúp
.bgWaitting{content:' ';color:#FFF; text-align: center; position: absolute; width:100%; height: 100%; top:0; z-index: 1; padding-top: 20%; display: none;}
.bgWaitting::after{content:' ';background-color: #000; opacity: 0.5; position: absolute; width:100%; height: 100%; background-color: #000;
opacity: 0.8; z-index: -1; top:0; left: 0;}
.content-tuvan-muaban{position: relative;}
#otp-code-tuvan{display:none;}
.verification-code-tuvan{padding: 10px; margin: 0 auto; display:none;}
.verification-code-tuvan .head-note{padding: 10px 0px 10px 0px; text-align:center;}
.verification-code-tuvan .head-note span{color:#808B96;}
.verification-code-tuvan .mdl-textfield .sendOtp{display:block; text-transform: none; width:120px;}
.verification-code-tuvan .mdl-textfield .sendOtp.nonfright{display: inline-block;}
.verification-code-tuvan .mdl-textfield .backForm{width:120px;}
.verification-code-tuvan .mdl-textfield .verifyCodebtn{display:none;}
.verification-code-tuvan .mdl-textfield.active .sendOtp{display:none;}
.verification-code-tuvan .mdl-textfield.active .verifyCodebtn{display:block;}
.verification-code-tuvan .mdl-textfield__input{width: 43%; border: 1px solid #000; padding: 5px; margin-left:20px;}
.verification-code-tuvan .sevenButton{width:100px; border-radius:0px;}
.sevenButton.whiteButton{background: #FFF; color: #000; border: 1px solid #000; margin-left: 5px;}
#verify-code-button:disabled{background:#DDD; color:#CCC;}
#sendOtp{ margin-left:10px;}
#msgSendOtpTuVan{display:none; margin-left: 13px; padding: 7px; color: red;}
.timer{padding: 7px; display: block; color: #005ba0; font-weight: 600; margin-left: 13px;}
.tuvan-muaban-board{margin-top:/*60*/ 30px; text-align: center; margin-bottom: 30px;}
.tuvan-muaban-form{width:50%; border:1px solid #CCC; margin:0 auto; background: #f0f0f0; padding:10px; border-radius: 15px; box-shadow: rgba(0, 0, 0, 0.16) 0px 1px 4px;}
.tuvan-muaban-form .title{text-align:center; font-weight:bold; font-size:16px; margin-bottom:10px;}
.tuvan-muaban-form .msg-form{text-align:center; margin-bottom:10px; font-size: 16px;}
.tuvan-muaban-form .msg-form .mobile{display: none;}
.tuvan-muaban-form .text-form{width:90%; border:1px solid #e3e3e3; padding:9px; background-color:#fff;}
.tuvan-muaban-form .formInfor form .rows{margin-bottom:18px;}
.tuvan-muaban-form .formInfor form .rows:last-child{margin-bottom:0px;}
.tuvan-muaban-form .formInfor form div a.btn, #tuvan-muaban-modal a.btn{width:90%; font-size:16px; border-radius:5px; background-color:#0069d9; border-color: #0069d9;}
#tuvan-muaban-modal .modal-header, #tuvan-muaban-modal-success .modal-header{background:#0072c9;}
#tuvan-muaban-modal .modal-header h3, #tuvan-muaban-modal-success .modal-header h3{text-align: center; font-size: 24px; width: 100%; color: #FFF;}
#tuvan-muaban-modal .width-100-m{width:97%; display: inline-block; padding-left: 13px;}
#tuvan-muaban-modal .width-50-m{width:48%; display: inline-block; padding-left:13px;}
#tuvan-muaban-modal .width-50-m input[type='text'],#tuvan-muaban-modal .width-50-m select{width:100%;}
#tuvan-muaban-modal .width-50-m .select2{width:100% !important;}
#tuvan-muaban-modal .input-form{padding:6px 5px 7px 5px;border:1px solid #d8dde6 !important; width:100%;}
#tuvan-muaban-modal .msg-form{text-align:center; font-size:16px;padding: 5px;}
#tuvan-muaban-modal .msg-form.mobile{display: none;}
#tuvan-muaban-modal .menuchildborder{margin-top:10px;}
.rowBtnSubmit{text-align: center; margin-top:10px;}
.rowBtnSubmit a.btn{width:95% !important;}
#tuvan-muaban-modal-success .msg-form.success{text-align:center; margin-bottom:10px; font-size: 16px; font-weight: bold; margin-top: 20px; margin-bottom: 20px;}
#tuvan-muaban-modal-success .content-tuvan-muaban{padding:8px;}
#tuvan-muaban-modal-success .content-tuvan-muaban .msg-infor{text-align:center; margin-bottom: 20px;}
#tuvan-muaban-modal-success .content-tuvan-muaban .msg-infor a{color:blue;}
.nonfright{float: none!important; display: inline-block;}
.tuvan-note{width:100%; height: 120px; border:1px solid #ced4da; padding:10px;}
/* For Cafeland */
.menu-main .navbar-top {margin: 0px -10px;}
@media (max-width: 590px){
.tuvan-muaban-form{width:80%;}
.verification-code-tuvan .mdl-textfield__input{width:40%;}
}
@media (max-width: 490px){
.tuvan-muaban-form .msg-form .pc{display: none;}
.tuvan-muaban-form .msg-form .mobile{display: block;}
#tuvan-muaban-modal .msg-form.pc{display: none;}
#tuvan-muaban-modal .msg-form.mobile{display: block;}
}
Cảnh báo: Thông tin dự án này được CafeLand tổng hợp từ nhiều nguồn khác nhau và chúng tôi cho là tin cậy. Tuy nhiên, dự án có thể thay đổi nhiều thông tin qua thời gian do chủ đầu tư hoặc cơ quan chức năng nên sẽ có những thông tin chưa được thống nhất và cập nhật kịp thời. Vì vậy, bạn đọc và khách hàng dự án chỉ xem đây là nguồn tham khảo.