Click vào để biết vị trí, tiện ích, quy hoạch... của dự án
Bạn muốn đặt Hotline ở đây
Ranh giới và kết nối liên vùng của KCX&CN Linh Trung 3 Tây Ninh
Khu vực nghiên cứu dự án thuộc địa bàn phường An Tịnh, tỉnh Tây Ninh (phường An Tịnh, thị xã Trảng Bàng, tỉnh Tây Ninh cũ).
Kết nối vùng:
- Cách TP.HCM khoảng 44km
- Cách TP.Tây Ninh cũ khoảng 53km
- Cách sân bay Tân Sơn Nhất khoảng 37km
- Cách cảng Cát Lái khoảng 45km.
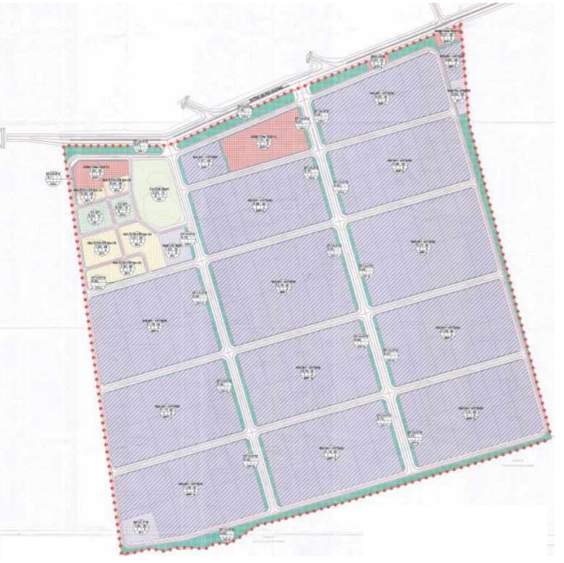
Quy mô dự án KCX&CN Linh Trung 3 Tây Ninh

Phối cảnh KCX&CN Linh Trung 3
| Tổng diện tích | 202,67ha |
| Quy hoạch sử dụng đất | Đất xí nghiệp công nghiệp: 134,76ha Đất công trình điều hành, dịch vụ: 5,92ha Đất nhà ở dành cho chuyên gia và công nhân: 4,77ha Đất cây xanh - công viên: 22,25ha Đất giao thông: 32,35ha Đất công trình đầu mối hạ tầng kỹ thuật: 2,61ha Đất giải tỏa kênh rạch: 0,01ha |
| Ngành nghề | - Công nghiệp điện, điện tử và thiết bị thông tin. - -Công nghiệp cơ khí và chế tạo máy móc. - Công nghiệp lắp ráp phương tiện vận chuyển. - - Công nghiệp sản xuất dược liệu, dược phẩm và dụng cụ y tế. - Công nghiệp mỹ phẩm và hương liệu. - Công nghiệp cao su và nhựa. - Công nghiệp sản xuất dụng cụ thể dục thể thao và đồ chơi trẻ em. - Công nghiệp sản xuất giày và phụ kiện ngành giày… |
Quy mô KCX&CN Linh Trung 3

Bản quy hoạch sử dụng đất KCX&CN Linh Trung 3
Hệ thống cơ sở hạ tầng dự án KCX&CN Linh Trung 3 Tây Ninh
Hệ thống cấp điện
- Điện cung cấp đạt tiêu chuẩn Việt Nam TCVN1985-1994.
Hệ thống cấp nước
- Nước cung cấp đạt tiêu chuẩn Việt Nam TC 505/BYT. Nhà máy nước có khả năng cung cấp 15.000m3/ngày.
Hệ thống xử lý nước thải
- Nước thải được xử lý sơ bộ tại nhà máy đạt tiêu chuẩn KCN trước khi thải ra từ các xí nghiệp và sẽ được xử lý tập trung tại nhà máy xử lý nước thải của khu đạt tiêu chuẩn TCVN40:2011/BTNMT khi thải ra hệ thống thoát nước bên ngoài khu.
- Nhà máy xử lý nước thải có khả năng xử lý 10.000m3/ngày.
Hệ thống viễn thông
- Có khoảng 1.500 dây điện thoại IDD cung cấp cho các xí nghiệp trong khu.
Pháp lý dự án KCX&CN Linh Trung 3 Tây Ninh
Quyết định số 327/QĐ-BXD ngày 26/03/2003 của Bộ Xây dựng về phê duyệt chi tiết tỷ lệ 1/2.000 QHCT KCX & CN Linh Trung 3.
Quyết định số 3119/QĐ-UBND ngày 22/12/2017 của UBND tỉnh Tây Ninh phê duyệt điều chỉnh quy hoạch chi tiết Khu chế xuất và công nghiệp Linh Trung 3
Các văn bản về đất đai:
Quyết định số 61/QĐ-CT ngày 04/3/2003 của UBND tỉnh Tây Ninh về việc giao đất cho công ty liên doanh khai thác KCX Sài Gòn – Linh Trung (Sepzonze - Linh Trung) thuê để xây dựng khu chế xuất.
Quyết định số 305/QĐ-CT ngày 25/6/2003 của UBND tỉnh Tây Ninh về việc cho Công ty Liên doanh khai thác kinh doanh Khu chế xuất Sài Gòn – Linh Trung (nay là Công ty TNHH Sepzone – Linh Trung (Việt Nam)) thuê đất để xây dựng Khu chế xuất.
Tiến độ dự án KCX&CN Linh Trung 3 Tây Ninh
Chủ đầu tư đã được UBND tỉnh Tây Ninh giao đất để thực hiện dự án khoảng 2.017.210,6m2 trên tổng diện tích 2.026.700m2.
Hiện tại, KCX & CN Linh Trung 3 đã thu hút 85 doanh nghiệp và đã được lấp đầy khoảng 90%.


Chi phí thuê dự kiến tại KCX&CN Linh Trung 3 Tây Ninh
- Giá thuê cơ sở hạ tầng: 80 USD/m2 (chưa bao gồm VAT)
- Phí quản lý: 0,5 USD/m2/năm (chưa bao gồm VAT).
- Phí xử lý nước thải: 7.500 VND/m3 (chưa bao gồm VAT)
- Đơn giá nước: 8.591 VND/m3 (chưa bao gồm VAT)
- Đơn giá điện (chưa bao gồm VAT):
Giờ bình thường: 1.555 VND/kWh
Giờ cao điểm: 2.871 VND/kWh
Giờ thấp điểm: 1.007 VND/kWh
Thông tin chủ đầu tư dự án KCX&CN Linh Trung 3 Tây Ninh
Chủ đầu tư dự án KCX&CN Linh Trung 3 là Công ty TNHH Sepzone – Linh Trung (Việt Nam) có địa chỉ trụ sở là Khu phố Suối Sâu, phường An Tịnh, tỉnh Tây Ninh. Người đại diện pháp luật là ông Yang Kaiyong.
Doanh nghiệp được cấp Giấy chứng nhận đăng ký hoạt động chi nhánh số 0300742098-001, đăng ký lần đầu ngày 31/8/1992 và đăng ký thay đổi lần thứ 9 ngày 25/03/2024 do Sở Kế hoạch và Đầu tư tỉnh Tây Ninh cấp. Ngành nghề chính của doanh nghiệp là kinh doanh bất động sản, quyền sử dụng đất thuộc chủ sở hữu, chủ sử dụng hoặc đi thuê.
Thông tin nhanh dự án KCX&CN Linh Trung 3 Tây Ninh
| Dự án: Khu chế xuất và công nghiệp Linh Trung 3 | Ngày khởi công: |
| Vị trí: Phường An Tịnh, tỉnh Tây Ninh | Thời hạn vận hành: 2002 - 2052 |
| Tổng diện tích: 202,67ha | Tổng vốn đầu tư: |
| Chủ đầu tư: Công ty TNHH Sepzone – Linh Trung (Việt Nam) | Tỷ lệ lấp đầy: 90% |
Đăng ký kênh Youtube CafeLand để theo dõi các video bất động sản mới nhất! theo Thanhnienviet
Dịch vụ đăng tin
Dịch vụ đăng tin
Dịch vụ đăng tin
Dịch vụ đăng tin
Dịch vụ đăng tin
Bạn là người am hiểu về dự án
Khu chế xuất và công nghiệp Linh Trung 3
Hãy cho chúng tôi biết đánh giá của bạn.
trên toàn quốc và một số ngân hàng
để hỗ trợ bạn tìm một ngôi nhà phù hợp.
và một số ngân hàng để hỗ trợ bạn tìm một ngôi nhà phù hợp.